Quadrilocale in vendita

Campagnano Di Roma, Via abruzzo
€ 112.000
Prezzo aggiornato
3 locali 3 locali
100 Mq 100 Mq
1 bagno 1 bagno

Quadrilocale in vendita

Campagnano Di Roma, Via abruzzo

Descrizione annuncio

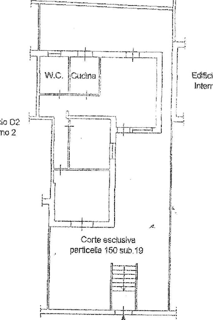
Campagnano di Roma - In una zona residenziale tranquilla del paese proponiamo appartamento posto al piano terra situato all’interno di un villino con ingresso indipendente.

L'immobile in buone condizioni generali e con una metratura commerciale di 100 Mq si compone da ampio soggiorno con uscita sul portico, ideale per godersi l’aria aperta o pranzare all’esterno. Proseguendo abbiamo l'angolo cottura a vista, bagno dotato sia da doccia che da vasca, offrendo diverse opzioni di comfort. La zona notte, comprende una camera matrimoniale e una cameretta, perfette per una famiglia o per chi ha bisogno di uno spazio in più.

La proprietà include anche un giardino privato, perfetto per rilassarsi all’aria aperta, coltivare piante o trascorrere del tempo con amici e famiglia.

L'immobile risulta essere ideale per chi è alla ricerca di una prima casa in un contesto tranquillo e residenziale.

Mostra tutto

Nelle vicinanze

Trasporto pubblico Trasporto pubblico
Trasporto pubblico
2,0 Km
Ricariche auto elettriche Ricariche auto elettriche
Campignano del Salvatore | EnelX
1,1 Km
CAMPIGNANO Piazza Croce | ENELX
1,8 Km
Supermercati Supermercati
Conad
1,3 Km
Coop
1,7 Km
In's
1,9 Km
Bar Bar
Bar europa
1,8 Km
Ristoranti Ristoranti
Ristorante Freddy
1,5 Km
Il gusto della pizza da Marco e Simone
1,6 Km
Il Baccanale
1,7 Km
Il Pavone
1,7 Km
Mostra tutto

Caratteristiche

Rif.:
61062504
Piano:
Terra con giardino
Posti auto:
1
Terrazzi:
1
Camere da letto:
2
Arredamento:
Assente
Mostra tutto
Prezzo Prezzo
€ 112.000
Rata mutuo Rata mutuo
€ 497 / mese
Spese annue Spese annue
€ 600
Proponi il tuo prezzoProponi il tuo prezzo

Classe Energetica

G
G
G
G
G
G
G
G
G
EP globale non rinnovabile:
175.00 kW h/m² anno
EP globale rinnovabile:
175.00 kW h/m² anno
EP invernale del fabbricato:
EP estiva del fabbricato:
Anno di costruzione:
1980
Riscaldamento:
Autonomo
Tipo impianto:
A radiatori
Tipo alimentazione:
GPL

Prezzo ridotto di €1 (6%%)

Ti interessa visionare l'immobile?

Fissa un appuntamento  Fissa un appuntamento

Richiedi informazioni

* Questi campi sono obbligatori

Calcola il tuo mutuo

Semplice e senza impegno
Anticipo

( % )
Mutuo

( % )

pochi semplici passi

inserisci i tuoi dati
Questionario completato
Grazie per aver richiesto un appuntamento senza impegno con un nostro Consulente del Credito e Assicurativo.

Hai inserito correttamente tutti i dati necessari e a breve riceverai una e-mail con un link da convalidare per inviare i tuoi dati.
Affiliato
Immobiliare Campagnano Srl
P.zza Cesare Leonelli, 27 00063 Campagnano Di Roma (RM)

Il nostro staff


  • Federica Coppola
    Coordinatrice

  • Mario Coppola
    Collaboratore

  • Alessia Di Liberti
    Collaboratrice

  • Mattia Lai
    Collaboratore

  • Simone Santonico
    Collaboratore

  • Matteo Saraconi
    Affiliato

  • Angelo Capocchia
    Affiliato
P.zza Cesare Leonelli, 27 00063 Campagnano Di Roma (RM)
Zona: Campagnano di Roma
Mostra su mappa
Affiliato
Immobiliare Campagnano Srl
P.zza Cesare Leonelli, 27 00063 Campagnano Di Roma (RM)

2025 Tecnocasa Franchising S.p.A. - P. IVA 08365160152 - Via Monte Bianco 60/A 20089 Rozzano (MI). Ogni agenzia ha un proprio titolare ed è autonoma. Privacy policy | Policy utilizzo | Cookie policy