Quadrilocale in vendita

Mazzano Romano, Via Casale Ente Maremma
€ 99.000
4 locali 4 locali
105 Mq 105 Mq
1 bagno 1 bagno

Quadrilocale in vendita

Mazzano Romano, Via Casale Ente Maremma

Descrizione annuncio

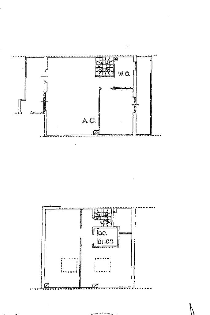
Mazzano Romano - nel centro del paese adiacente ai principali servizi proponiamo in vendita appartamento situo al piano primo.

L'immobile di una metratura calpestabile di 90 mq è composto da ampio soggiorno con angolo cottura con uscita sul balcone, camera matrimoniale con balcone e bagno con vasca.

Salendo al piano superiore troviamo due ampi locali mansardati e ripostiglio.

Completano la proprietà garage e cantina.

Data la sua strategica posizione e l'ottimale divisione degli spazi interni, la soluzione risulta ideale per chi è alla ricerca di un immobile da adibire come prima casa o per chi non vuole rinunciare a tutte le comodità offerte pur rimanendo nelle immediate vicinanze del centro abitato.

Mostra tutto

Nelle vicinanze

Trasporto pubblico Trasporto pubblico
Trasporto pubblico
120 m
Ricariche auto elettriche Ricariche auto elettriche
Calcata Mandolina | EnelX
2,6 Km
Municipio di Calcata | EnelX
2,7 Km
Farmacia Farmacia
Farmacia
160 m
Farmacia
2,7 Km
Supermercati Supermercati
Crai
200 m
Negozi Negozi
Frutteria
140 m
Alimentari
150 m
Alimentari Di Giovenale
280 m
Tabacchi Minimarket Sbordoni
520 m
Il Forno
2,0 Km
Bar Bar
Bar da Peppa
2,2 Km
Rock Bar
2,2 Km
Ristoranti Ristoranti
Geko's Restaurant
100 m
L’Antico Molino
710 m
Il Graal
2,0 Km
Tugurio
2,0 Km
Latteria del Gatto Nero
2,0 Km
Mostra tutto

Caratteristiche

Rif.:
61040886
Piano:
1 (Piano medio)
Box:
1
Posti auto:
2
Balconi:
1
Camere da letto:
1
Mostra tutto
Prezzo Prezzo
€ 99.000
Rata mutuo Rata mutuo
€ 439 / mese
Proponi il tuo prezzoProponi il tuo prezzo

Classe Energetica

G
G
G
G
G
G
G
G
G
EP globale non rinnovabile:
175.00 kW h/m² anno
Anno di costruzione:
2006
Riscaldamento:
Autonomo
Tipo impianto:
A radiatori
Tipo alimentazione:
Metano

Ti interessa visionare l'immobile?

Fissa un appuntamento  Fissa un appuntamento

Richiedi informazioni

* Questi campi sono obbligatori

Calcola il tuo mutuo

Semplice e senza impegno
Anticipo

( % )
Mutuo

( % )

pochi semplici passi

inserisci i tuoi dati
Questionario completato
Grazie per aver richiesto un appuntamento senza impegno con un nostro Consulente del Credito e Assicurativo.

Hai inserito correttamente tutti i dati necessari e a breve riceverai una e-mail con un link da convalidare per inviare i tuoi dati.
Affiliato
Immobiliare Campagnano Srl
P.zza Cesare Leonelli, 27 00063 Campagnano Di Roma (RM)

Il nostro staff


  • Federica Coppola
    Coordinatrice

  • Mario Coppola
    Collaboratore

  • Alessia Di Liberti
    Collaboratrice

  • Mattia Lai
    Collaboratore

  • Simone Santonico
    Collaboratore

  • Matteo Saraconi
    Affiliato

  • Angelo Capocchia
    Affiliato
P.zza Cesare Leonelli, 27 00063 Campagnano Di Roma (RM)
Zona: Campagnano di Roma
Mostra su mappa
Affiliato
Immobiliare Campagnano Srl
P.zza Cesare Leonelli, 27 00063 Campagnano Di Roma (RM)

2025 Tecnocasa Franchising S.p.A. - P. IVA 08365160152 - Via Monte Bianco 60/A 20089 Rozzano (MI). Ogni agenzia ha un proprio titolare ed è autonoma. Privacy policy | Policy utilizzo | Cookie policy